Welcome Home to Lakeside Serenity: A Brick Ranch Gem Awaits For You!
- Kirk Keebler

- Jul 21, 2025
- 3 min read
Updated: Aug 1, 2025

An amazing new Listing has just come on the market. Located in a premiere location within the scenic subdivision of Loch Alpine, 4755 Bridgeway Drive is just north of Huron River Drive between Ann Arbor and Dexter. About 1 1/2 miles from Delhi Mills metropark along the Huron River!
Step back in time to a place where classic charm meets modern comfort, all nestled on the serene shores of a small, picturesque lake with a community walking trail right outside your door. Tucked away on nearly half an acre of meticulously landscaped beauty, this delightful 1963 brick ranch offers not just a house, but a lifestyle. If you've been dreaming of peaceful mornings with a cup of coffee overlooking the water, and evenings filled with the comforting glow of a crackling fire, then welcome home.
From the moment you pull into the driveway, you'll be captivated by the inviting curb appeal. The mature pine trees stand as stately sentinels, providing both shade and privacy, while the beautifully maintained landscaping hints at the care and love poured into this property. A spacious two-car garage ensures ample space for vehicles and storage, making daily life that much easier.
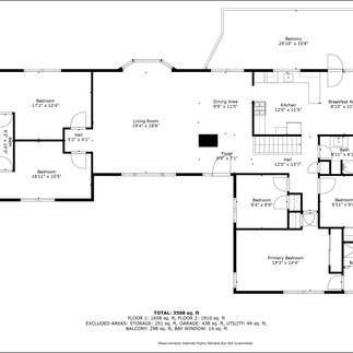
Inside, this home truly unfolds its generous spirit. With over 2200 square feet of living space, it offers ample room, yet thanks to its thoughtful design and a wonderfully open floor plan, it feels even more expansive and inviting. Natural light streams through the home, enhancing the spacious feel and creating an airy atmosphere perfect for both everyday living and entertaining.
This home boasts four spacious bedrooms, ensuring plenty of room for everyone to spread out and find their own cozy corner. Two of the bedrooms share a convenient Jack and Jill bathroom, a thoughtful design that offers both privacy and practicality. Imagine the ease of morning routines or evening wind-downs in this well-appointed space.
Descend to the lower level, and you'll discover another realm of comfort and entertainment. A cozy fireplace beckons on cooler evenings, promising warmth and ambiance for gatherings with loved ones. This level isn't just a basement; it's a vibrant extension of the living space, perfect for movie nights, game days, or simply unwinding after a long day.
One of the most appealing features of the lower level is its seamless connection to the outdoors.
A convenient walk-out access leads directly to a charming patio, an idyllic spot for al fresco dining, grilling, or simply soaking up the sunshine. Just above, a spacious deck extends the outdoor living options, providing another vantage point to take in the breathtaking views of the lake. Imagine summer barbecues with friends, lazy afternoons with a good book, or quiet evenings under the stars – all against the backdrop of your own private waterfront oasis.
But the true hidden gem of this property lies in its incredible versatility: a dedicated mother-in-law suite. This self-contained haven boasts its own private kitchen and a full bathroom, offering unparalleled flexibility. Whether you envision a comfortable space for extended family, a private retreat for guests, or even a dedicated home office or art studio, this suite provides endless possibilities. It's truly a home within a home, designed to adapt to your evolving needs.
Here are some highlights that make this home truly special:
Expansive Living: Over 2200 sq ft with an open floor plan that maximizes space and natural light, making it feel even larger.
Flexible Living Arrangements: Four bedrooms plus a dedicated mother-in-law suite with its own kitchen and full bath – perfect for multi-generational living or extended guest stays.
Outdoor Paradise: Enjoy nearly half an acre (.42 acres) of beautifully landscaped grounds, mature pine trees, a private lake, and multiple outdoor living spaces (patio and deck).
Cozy Comforts: A warm fireplace on the lower level, perfect for cozy evenings.
Convenience & Storage: A spacious two-car garage for vehicles and all your outdoor gear.
And speaking of the lake, this property truly embraces its unique setting. The small, peaceful lake offers opportunities for walking, fishing, kayaking, or simply observing the local wildlife. It's a constant source of calm and beauty, right in your backyard.
This 1963 brick ranch isn't just a house; it's a legacy. It's a place where memories are made, laughter echoes, and the stresses of the outside world simply melt away. It's a harmonious blend of classic architecture, thoughtful design, and an unparalleled natural setting.
Ready to experience lakeside living at its finest? Don't miss the opportunity to make this enchanting property your own. Being offered at $649,900, by Kirk Keebler with Jodie Franklin Realty, LLC.




















































Comments